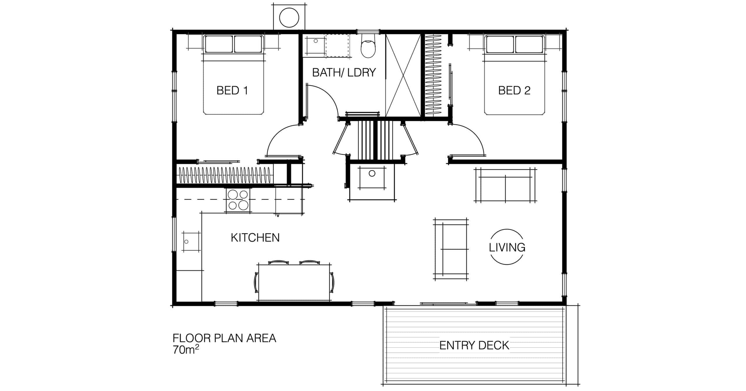
Pakipaki