Skip to content
Home
About Us
Our House Design Process
Our Services
New Homes
Alterations and Renovations Designer
Granny Flat Plans
Holiday Home and Bach Design
Tiny Homes
Planning & Concept House Plans
Contact Us
Home
About Us
Our House Design Process
Our Services
New Homes
Alterations and Renovations Designer
Granny Flat Plans
Holiday Home and Bach Design
Tiny Homes
Planning & Concept House Plans
Contact Us
Call Now
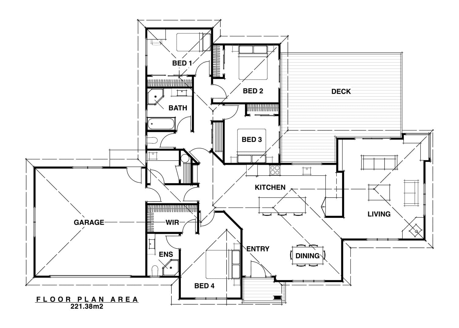
Okawa
Planning & Concept Plans
Porangahau
Read More »
Planning & Concept Plans
Lindsay
Read More »
Planning & Concept Plans
Simla
Read More »