Skip to content
Home
About Us
Our House Design Process
Our Services
New Homes
Alterations and Renovations Designer
Granny Flat Plans
Holiday Home and Bach Design
Tiny Homes
Planning & Concept House Plans
Contact Us
Home
About Us
Our House Design Process
Our Services
New Homes
Alterations and Renovations Designer
Granny Flat Plans
Holiday Home and Bach Design
Tiny Homes
Planning & Concept House Plans
Contact Us
Call Now
Omahu
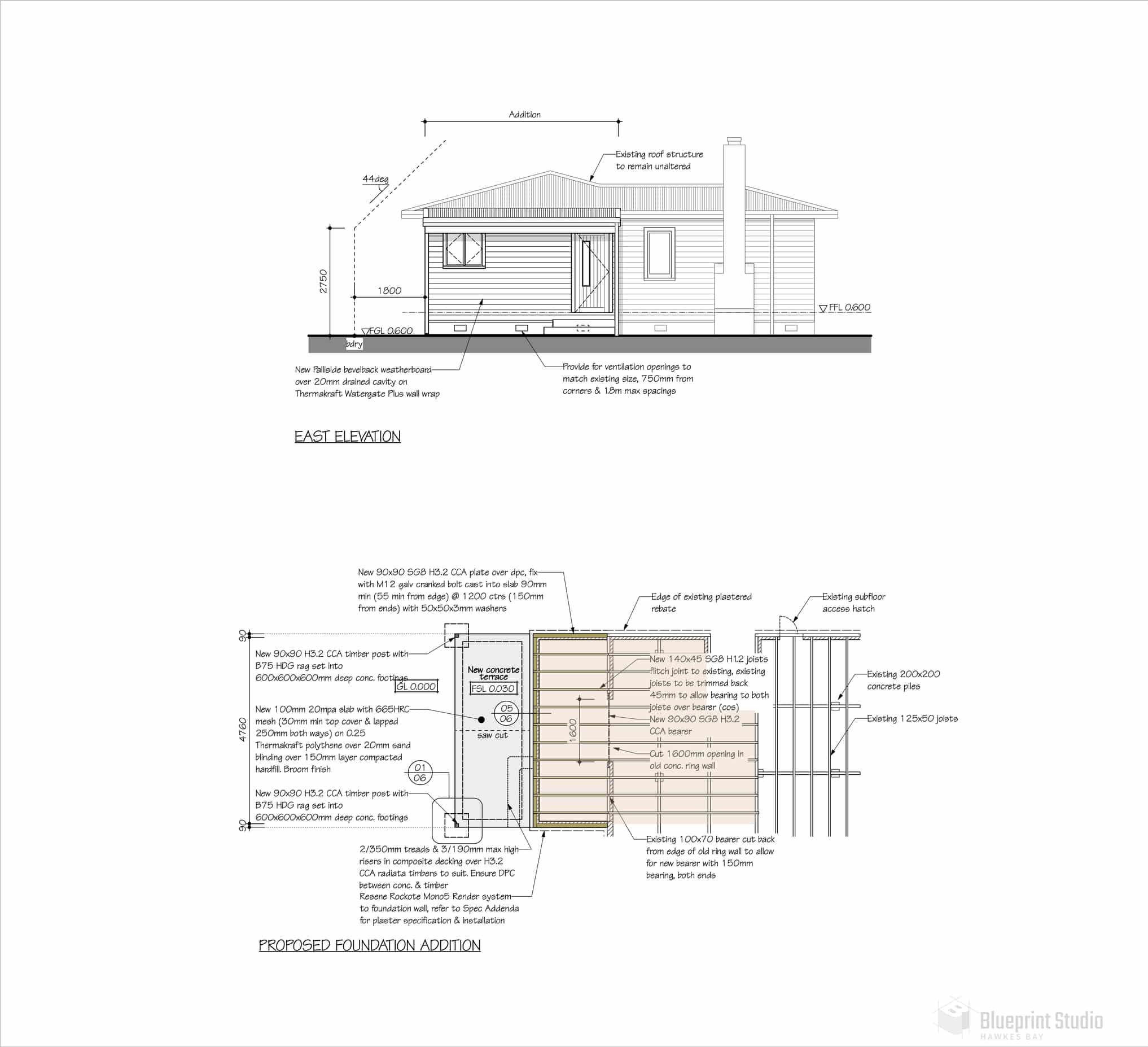
Renovations & Alterations
Tokomaru
Read More »
Renovations & Alterations
Joll
Read More »